Les origines du projet
D’après une ancienne brochure et un plan de situation d’époque, le projet du Belvédère de l’Observatoire remonte à 1977.

Plan d’origine – la construction finale diffère de ce projet.
L’idée initiale était ambitieuse : créer un immeuble de standing, en prolongement du célèbre Hôtel de l’Observatoire, alors établissement renommé de Saint-Cergue.
Le concept prévoyait des appartements modernes pour l’époque — salon, cuisine équipée, de une a cinq chambres, chacune avec sa salle de bains — afin d’offrir une alternative élégante aux séjours hôteliers traditionnels.
Avant la construction, le terrain servait notamment de courts de tennis et patinoir.
Le projet prévoyait également plusieurs installations sportives et de détente :
- un centre de bien-être avec piscine exterieur,
- un espace spa,
- et des pistes de curling situées sur le toit du garage.
Pour éviter tout malentendu, la PPE du Belvédère n’a aucun lien avec la PPE de l’Observatoire. Nous sommes simplement voisins, rien de plus.
Une transformation en cours de route
La construction s’est terminée en 1982. Pour des raisons que je connais pas, le projet a été modifié en cours de route.
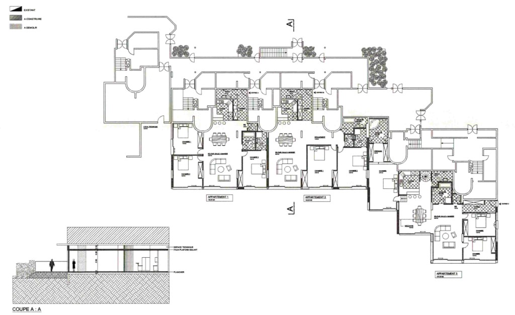
Les promoteurs ont décidé de standardiser l’ensemble en unités de 2,5 pièces (1 chambre) et 3,5 pièces (2 chambres), puis de fusionner deux unités pour créer des appartements de 4.5 pieces (3 chambres) dotés d’un vaste double salon.
Cette évolution est encore visible aujourd’hui : plusieurs logements disposent de deux tableaux électriques et même de deux portes d’entrée, chacune avec sa sonnette, donnant sur le même couloir. Cela leur confère un certain caractère atypique… mais parfois bien pratique !
L’immeuble compte désormais alors trois types d’appartements principaux :
- 1 chambre: 2.5 pieces.
- 2 chambres: 3.5 pieces.
- 3 chambres: 4.5 pieces, résultant de la fusion d’un 2.5 et d’un 3.5 pièces (vas comprendre), et de ‘environ’ 150m2 ‘habitable’.
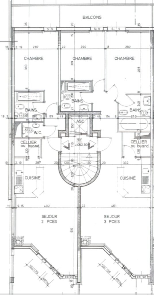
Les appartements de trois chambres offrent des espaces de vie remarquablement grands et conservent souvent leurs deux portes d’entrée. Bien que les configurations varient, le plan d’origine prévoyait une salle de bains par chambre. Les chambres font en moyenne 12 m².
Au fil des années, plusieurs copropriétaires ont modifié leur logement — en intégrant une partie du balcon pour créer une loggia, en fusionnant des chambres ou en repensant la distribution intérieure.
Le “Lot 41” : un projet inachevé
Les infrastructures sportives et de bien-être prévues à l’origine n’ont jamais vu le jour. Ces espaces, regroupés sous le nom de Lot 41, comprenaient la piscine, le spa et les pistes de curling.
La piscine fut bien construite, mais jamais terminée : elle n’a jamais vu une goutte d’eau et fut finalement enterrée une trentaine d’années plus tard.
Aujourd’hui, son emplacement a été reconverti en prairie où chamois et renards se promènent librement.
Les pistes de curling n’ont pas été réalisées non plus.
Une petite partie du Lot 41, initialement prévue comme espace de service (“back-office”), fut achevée et occupée pendant un temps par une banque, qui y installa ses bureaux.
C’est de cette époque que date notre actuelle salle de réunion du comité.
Une histoire juridique mouvementée
Au fil du temps, le Lot 41 et plusieurs parcelles voisines ont été placés sous la propriété d’une fondation basée au Liechtenstein.
Cette entité, longtemps inactive, a ignoré les demandes du village et des copropriétaires visant à achever le projet.
La fondation possédait également un bâtiment attenant à l’Observatoire, démoli il y a une vingtaine d’années pour des raisons de sécurité.
Cette démolition a généré une dette importante envers la commune.
l’Observatoire, la PPE Belvédère et la commune détenaient toutes des créances non réglées vis-à-vis de la fondation.
Dans le passé, il y a eu plusieurs projets visant à convertir au moins la partie spa/détente du lot 41 en appartements, mais aucun n’a jamais abouti. (voire projet ici).
Finalement, la fondation a été déclarée en faillite, et ses biens ont été vendus aux enchères à Nyon en 2017. La commune a acquis plusieurs terrains, l’Observatoire a racheté des lots dans sa propre parcelle, mais le Lot 41, évalué à environ 750 000 CHF, n’a trouvé aucun acquéreur (voire article ici).
Le Lot 41 aujourd’hui
Fait exceptionnel, le Lot 41 a été “abandonné” par son propriétaire et, après une procédure de déshérence, il est devenu la propriété collective des copropriétaires du Belvédère — non pas comme une simple partie commune, mais au prorata des tantièmes de chacun.
Cela a créé une situation juridique complexe, rendant difficile tout développement de ce secteur.
Cependant, il est désormais sous le contrôle de la PPE, ce qui constitue une avancée importante.
Notre administrateur travaille actuellement à simplifier le statut légal du Lot 41, afin de faciliter son éventuelle valorisation à l’avenir.
En attendant, l’ancienne salle de réunion de la banque sert désormais à nos réunions de comité, tandis que le reste du lot demeure inutilisé et non aménagé.








